
A sense of happiness in the Saimaa archipelago
Make a reservation or inquiry
Directly from the company
Call us
044 0640116
Sijaintisi: Holiday cottages and villas » Männikkö 4+1
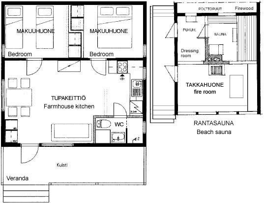
A rental cottage with comforts and its own lakeside sauna
The natural delights of Hirviniemi set the human mind at rest
Männikkö
*****
- For 4+1 persons
- 44 m² + 12 m² porch
- 2 bedrooms + open-plan kitchen + wc/shower
- Cottage about 45 metres from the shoreline
- Own separate wood-fired lakeside sauna, with a dressing room and porch
- Fully renovated
- Rocky shore and boat-shore with a sandy floor
- Rowing boat, small jetty and life vests
- Nearest neighbour 40 m, no direct view from the sauna or porch
- A great location at the end of the road and idyllic headland landscape
- MALO rating 4
- Free Wi-FI
Equipment:
- Dishes for 6 persons, cooker, microwave, coffee machine, fridge freezer and dishwasher
- Fireplace and outdoor grill
- TV and radio
- Hairdryer
- Duvets and pillows for 5 persons
- An additional bed for one person in the form of the living room sofa
- WC and kitchen paper rolls and washing-up liquid
- Wood for the fireplace and sauna
Worth knowing:
- Männikkö is for summer use, open every year from 28.4. to 18.10. (or as the weather permits)
- Pets are allowed. The charge per pet is €50 per booking
- The cottage is non-smoking
- You can use your own bedding and towels or rent them from us. The price is €15 per set
- The cottage does not have a washing machine
- Bring your own shampoo and soap
Loikansaaari Holiday Cottages / Loikansaarentie 430 / 58810 SAVONLINNA / Tel. 0440 640 116 / lomamokit@loikansaari.fi




















